COMPOSITION
酒店廚房組成部分
星級酒店的裝飾、設備都十分豪華,擁有全面的綜合服務,是社交、會議、娛樂、購物、消遣、保健等活動的中心。星級酒店首先應有布局合理、裝飾豪華的西餐廳,能提供自助早餐和西餐正餐,需配備專門的西餐廚房等;其次需開設具有特色、格調高雅的咖啡廳;具備功能齊全的小宴會廳、封閉式酒吧間等。星級酒店同時需要有布局合理、裝飾豪華的中餐廳和規模較大的宴會廳等,應配備能夠滿足大型宴會需要的宴會廚房,至少可以提供兩種及以上風味的中餐等,為顧客提供更多就餐選擇。
 酒店廚房工程
                         酒店廚房工程
                      西餐廚房
                         西餐廚房
                      酒吧間
                        酒吧間
                     咖啡廳
                        咖啡廳
                     中餐廚房
                        中餐廚房
                    RegionalDivision
酒店廚房區域劃分
星級酒店的餐廳規模一般以客房的床位數作為計算依據,一個床位等于一個餐位,每一個餐位平均占地二平方米(不包括多功能廳或大宴會廳)。根據酒店所處的位置,如需要對店外餐飲消費者開放,則按照市場需求增加餐飲面積。為住客準備的就餐餐廳座位數不應少于床位數的80%,餐廳的建筑設計應按照現行的飲食建筑設計規范中有關餐館部分的規定執行。
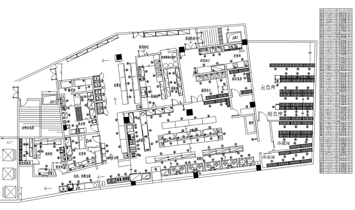
廚房面積一般為餐廳面積的30%-40%左右,廚房與餐廳應緊密相連,為確保菜品的色、香、味等質量,在沒有保溫設備的條件下,從廚房把飯菜送到客人的餐桌最好不超 過20米的距離。有些飯店受到場地或建筑結構、格局的限制,廚房的加工間或點心間,甚至冷菜、燒烤等制作間,可以不與餐廳在同一樓層,但烹調廚房必須與餐廳在同 一樓層。考慮到餐飲制作的效率和安全,尤其是會議、團隊等大批量出品,可能需用推車服務,因此,烹調廚房與餐廳應位于同一平面,不
 
            RegionalDivision
酒店廚房特殊性
 
        Design considerations
優佰特對酒店廚房把控
酒店廚房工程應注意的事項
酒店廚房應具備加工間、制作間、備餐間、庫房、洗碗消毒間、廚師長辦公室及廚工服務用房等。 優佰特對布局、路線、分區、排水等方面均按照國家相關法律法規進行設計,考慮到餐飲的生產, 從原材料的采購、收貨、入庫、存儲、保管到出庫、粗加工、切配、烹飪、裝盤出品等多方面進 行設計。應關注以下幾個方面:根據生產、出品的次序布局; 避免進、出廚房的物流產生交叉與 回流;避免人流與物流的交叉及員工流與客流的交叉;盡量縮短員工制作菜肴的行走路線;注意 潔、污,生、熟的分區;廚房的所有排水須經過隔油池隔除油污后方可排放出。
 
            Why did you choose us?
為什么選擇我們
 
                                 
                                 
                                 
                                 
                                 
                                 
                                 
                                 
                                 
                                 
                                 
                                Service case
工程服務案例
 
                     
                     
                     
                     
                     
                     
                     
                    About Ubat
關于優佰特