COMPOSITION
企事業單位食堂組成部分
企業員工食堂廚房設計的功能區域可劃分食品接收、儲藏及加工區域、烹飪作業區域、備餐洗滌區域、餐廳和其他行政工作用房。
RegionalDivision
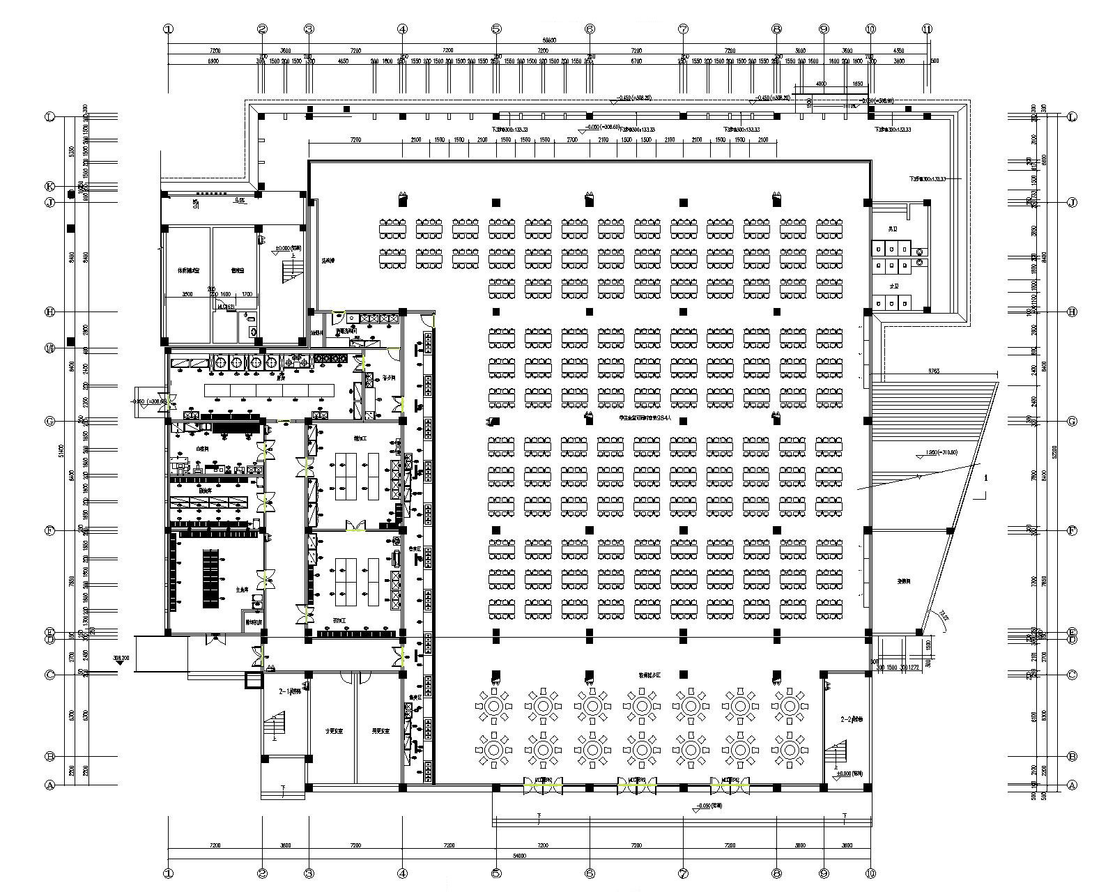
企事業單位食堂區域劃分
規模較大的機關、企事業等單位均設有自己的員工食堂,其構成與一般飯店、酒樓的廚房不同,它著重于主食、副食的制作加工,菜品相對簡單。因員工食堂出菜時間比較集中,所以廚房應多配置烹調加熱設備。
 
            企事業單位食堂區域劃分平面圖
RegionalDivision
企事業單位食堂特殊性
Design considerations
優佰特對企事業單位廚房的解決辦法
企事業單位廚房工程的設計應符合與健康安全要求相關的國家及地方法規,優佰特用專業眼光解決問題。
例如,某些企業員工工作時需操作大型機械設備,容易沾染機油等物,極易導致飯前洗手不徹底,致使 細菌、污物入口。在設計這類企業食堂時,優佰特為其增設了一個專門的凈手消毒入口。
如何選用廚房設備:由于事業單位內有大量重要資料,為保護資料及員工的人身安全,在選用廚房設備時 爐膛和廚房門應使用防火材料。優伯特只選擇安全設備,緊抓質量保證,落實安全性能。有條件的單位, 應設置個人護理,注意設備的使用安全及定期保養。燃氣廚房需定期檢查閥門泄漏情況,一經發現,應充 分通風,嚴禁明火,立即進行維護。電氣設備的廚房需定期檢查線路是否老化、分裂、短路,清洗設備時 應斷電,禁止直接用水沖洗。一旦所有設備發生故障,需及時進行檢修,完成故障排除后方可繼續使用。
最后,每項功能都按需求設置,優佰特根據廚房面積大小進行設計,符合廚師的工作需求。我們不會選擇 質量太低的設備,而是在滿足預算的基礎上,根據相應型號,合理選擇高質量的設備。
 
            Why did you choose us?
為什么選擇我們
 
                                 
                                 
                                 
                                 
                                 
                                 
                                 
                                 
                                 
                                 
                                 
                                Service case
工程服務案例
 
                     
                     
                     
                    About Ubat
關于優佰特