COMPOSITION
學校食堂組成部分
 
                         
                         
                        學校食堂由這幾個部分組成:廚房、售賣出餐區、就餐大廳等。其中,就餐大廳占用大部分建筑面積,其次是廚房。成都貴族學校——成都新川外國語學校食堂一、二、三層為學生食堂區,四層為教職工食堂區。
REGIONALDIVISION
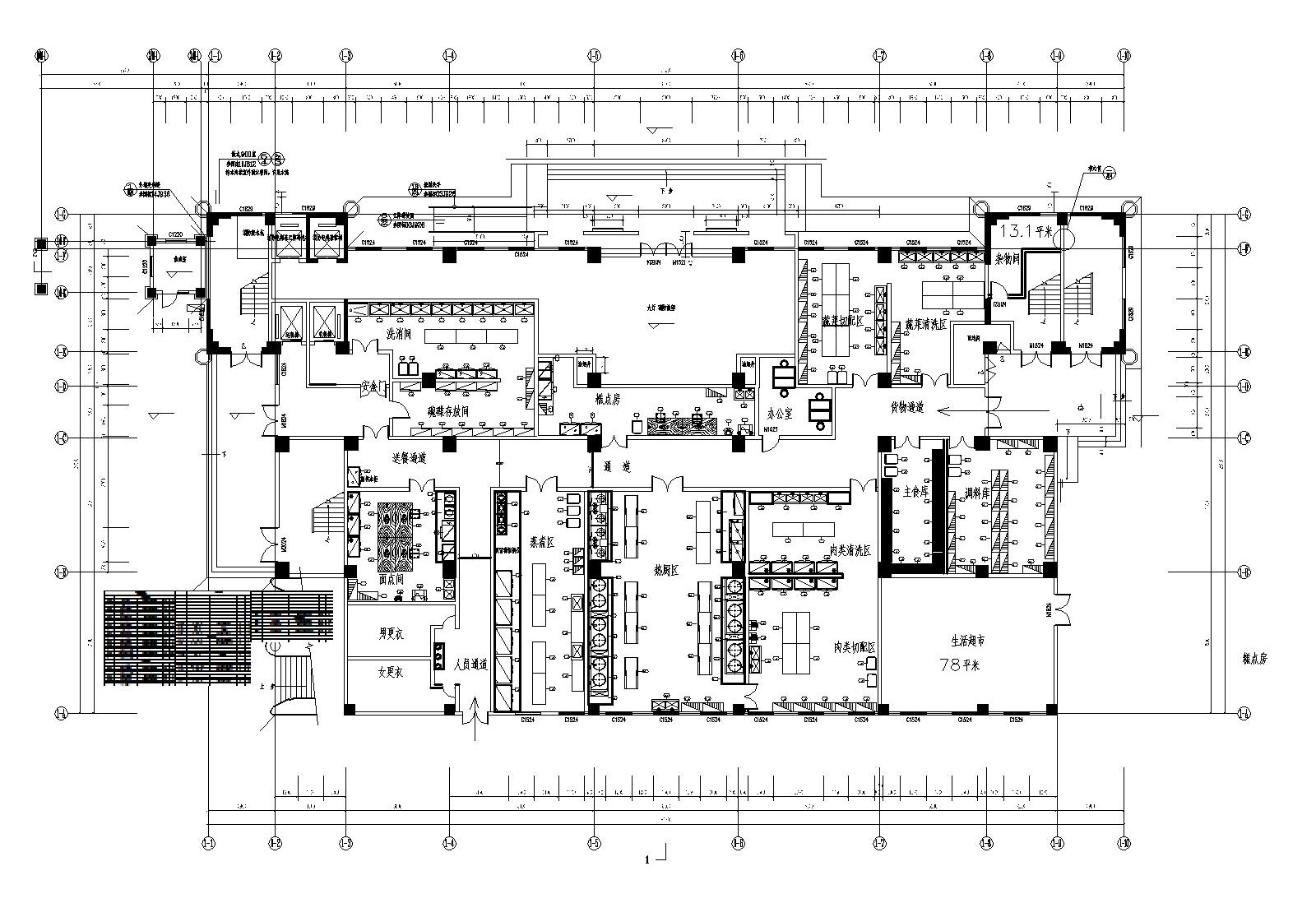
學校食堂區域劃分
 
                學校食堂區域劃分平面圖
RegionalDivision
學校食堂特殊性
 
                    非盈利性
 
                        經營上的非贏利性。不以贏利為目的,加上國家給予的優惠政策,餐品價格相對較低
 
                    大規模配送性
 
                        大規模的配送性。對于就餐者眾多的學校食堂,為保證食品安全,主要食材應由供應商統一定點配送。
 
                    單一性
 
                        就餐者的單一性。學校食堂的就餐者為本校師生,人數較穩定。
 
                    季節性
 
                        經營上的非贏利性。不以贏利為目的,加上國家給予的優惠政策,餐品價格相對較 低
Design considerations
優佰特對學校設計的考量
高校廚房工程應注意的事項
高校食堂不以盈利為目的,飯菜價格相對較低。在此前提下,應降低建筑物的造價和使用 過程中的運營成本。高校食堂有別于中小學食堂,雖同屬學校食堂,但具備一定的特殊性。 由于高校食堂采購次數多并擁有大容量儲備倉庫,可以在食堂中減少冷庫及庫房的建筑面積。 又因高校廚房工程項目油煙較重,食品監管部門對學校的食品質量監管會嚴格把控,所以, 高校食堂對安全的抽油煙系統和綠色環保的廚房設備有更高要求,而優伯特商用廚具能最 大限度的滿足高校食堂的需求
 
                Why did you choose us?
為什么選擇我們
 
                                 
                                 
                                 
                                 
                                 
                                 
                                 
                                 
                                 
                                 
                                 
                                Service case
工程服務案例
 
                     
                     
                     
                     
                     
                     
                     
                    About Ubat
關于優佰特