隆昌廚房設備公司告訴你商用廚房設計的組成
發布人: 四川優佰特廚房設備公司 發布時間:2023.06.28
商用廚房也和家用廚房一樣,在施工之前,需要先繪制廚房設計圖。而由于商用廚房的規模一般較大,且廚房設備的數量和種類較多,使用的能源也更多元化,因此,商用廚房設計就和家用的不同。那么,商用廚房設計由那幾部分構成呢?最近不少隆昌的朋友就在咨詢這個問題。雖然我們不是隆昌廚房設備公司,但是,作為長期在隆昌銷售學校廚房設備的公司,現在就和大家分享相關的知識。
作為專業的商用廚房全套設備生產廠家,我們根據多年的商廚設計經驗,總結了商用廚房設計的幾大構成部分,具體如下:
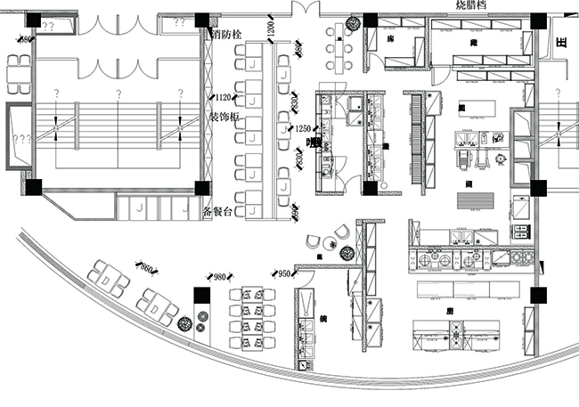
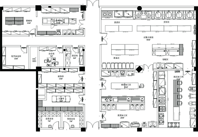
1.廚房設備布局:規劃整體廚房的功能流程,廚房設備類型、數量、尺寸。
2.廚房土建隔斷圖:廚房隔斷的尺寸和位置,門窗的尺寸和位置,廚房使用的轉換窗的高度和位置,構造細節等。

3.廚房設備供電點位圖:所有設備的用電量,電位的安裝高度、供電點的布線尺寸等。
4.廚房設計供水點位圖:所有用水設備的位置,包括冷水和熱水、水的安裝高度、供水的管徑等。
5.廚房設備排水點位圖:所有需要設備的位置,排水管徑等。

6.廚房設備通風排煙圖:所有排煙設備的排煙罩位置、排煙管徑大小、排煙管道走向、廚房風機凈化器的布置位置等。
7.氣點位圖等:廚房燃氣設備的供氣。
以上是我們整理的商用廚房設計的組成部分的相關知識,希望對大家有所幫助。
上一個產品:四川達州廚房設備生產廠家建議你不要買便宜...
下一個產品:綿竹廚房設備廠家告訴你絞肉機怎么賣







