成都不銹鋼廚具廠家告訴你大型學校食堂廚房工作間設計要點
發布人: 四川優佰特廚房設備公司 發布時間:2021.09.02
大型學校食堂廚房加工的食物很多,加工制作的工藝也非常之多,為了能夠完成如何復雜的食材加工,許多的大型學校食堂廚房都分為幾個功能區域。而我們也都知道每個功能區都有不同的設備,都有不同的工藝要求,因此,在設計廚房功能間是就必須了解廚房的實際結構和功能,這樣才能夠滿足大型食堂廚房的要求。那么,應該如何設計食堂功能間呢?作為專業的成都不銹鋼廚具廠家,我們有多年的商用廚房設計經驗,現在就和大家討論相關的知識。
作為專業的成都不銹鋼廚具廠家,我們認為,在設計廚房功能間時需要注意以下這些情況:
1、明確出餐特點
食堂、集中配餐、西點、零點飯店的主食加工間的區別相當大。主食加工間的出餐特點決定了所需設備的種類、型號和數量。主食加工間的設備種類、型號多,功能專一,不能互換使用。因此,主食加工間設計要明確經營特點、主營餐品種類和數量、需要的設備、加工工序與工藝特點,才能有針對性地設計,優化設計方案。
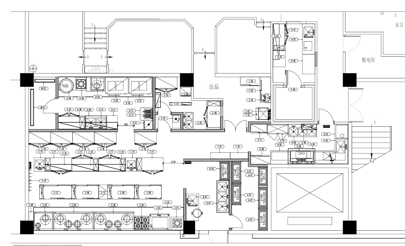
2、生制區與熟制區分開
一般在一個主食加工區域內設計兩大區,即生制區與熟制區,按加工流程布設,互不摻混。生制區的和面機、壓面機、面案、醒柜,按流水工序安排在一起。熟制設備安排在一起便于排煙、排氣。較大的飯店設有主食特色風味食品,如西點等,應該設單獨加工間,可以滿足生制區低溫干爽等環境控制指標,有利于餡料保鮮。
3、主要廚房設備和配套設備要滿足出餐需要
設備的種類、型號和數量要滿足出餐需要,主要設備要根據實際需要配置齊全,保鮮工作臺、水池、冷藏柜、面粉車、貨架、碗柜等輔助配套設備也應配置齊全。盡量做到不用離位就可以完成存取原料、洗洗涮涮、取放餐具等動作。特別是食堂、配餐中心的主食加工間,出餐量比較大,要有足夠的裝載生制品與熟制品的送餐車架,并留出運送通道。例如,生制品中的饅斗子餃子,點心要裝盤待用,需要車式饅頭架、烤餅架等。
4、設備布局流程順暢
主食運送量較大,特別是食堂和快餐店,都要運送大量的主食和湯粥,有時需要用推車運送,所以要留有較寬的通道,設備布局與通道銜接要十分簡捷順暢。較大的主食加工間要設生入與熟出的專用進出口,或用出餐口分開運行路線,確保加工傳餐順暢方便。
5、足夠的能源保證
主食加工間設備大多數能耗較大,開火時間較長,用電設備如蒸柜、烤箱,功率都是十幾千瓦或更大,所以需要油氣、蒸汽、電力有足夠的保證能力。
6、環保措施
主食加工間的熟制設備會產生大量的蒸汽、熱氣、油煙,特別是蒸汽,如果不能及時排出在冬季就會在廚房內形成水霧,影響視線,遇物體還會凝結為水滴,使所有用品和墻面受潮科學合理地排出蒸汽、油煙,補充新風有利于改善工作環境和保持原料的新鮮。
7、存儲空間
主食加工所用的原料,如食堂米面,用量都比較大,應根據實際需要設置運送、存儲空間裝盤待用的饅頭、包子、餃子、點心,餡料與成品冷凍冷藏的制冷設備,原料、佐料、調料餐具、用具的柜架,都要有合適的存放空間。
8、及時可靠的信息傳達
由于主食加工制作時間比較長,除米飯、饅頭、包子、點心可以提前熟制備用以外,還有些根據客人需要必須隨時加工、及時上桌的食品,如果信息傳達不及時就會誤事。
以上這些就是我們整理的關于商用廚房功能間設計的相關知識,希望對大家能夠有所幫助。
上一個產品:四川中央廚房設備生產廠家告訴你大型食堂廚...
下一個產品:四川學校廚房工程公司告訴你商用廚房設計需...







